Configurez ici votre propre Système de Chaînes Porte-Câbles. Toutes les saisies et modifications seront enregistrées dans la liste des produits se trouvant en fin de page.
Chaîne ESD Série E4.21, ouverture des deux côtés, entretoise tous les maillons
Le Système E4.1 ESD réunit tous les avantages des trois générations précédentes et est le meilleur système de la gamme de Chaînes Porte-Câbles igus®. Les Séries de la gamme E4.1 sont plus robustes que les modèles précédents à dimensions égales ou inférieures. Les accessoires et cotes de raccordement sont presque tous identiques. Augmenter encore la durée de vie de votre installation tout en réduisant les coûts avec le Système E4.1 d´igus®.
- Système de retenue pour une stabilité latérale optimale, une force d´avancée élevée sur les courses longues et de grandes longueurs autoportantes
- Convient bien aux applications à 90°
- "Freins" amortissant le bruit ou patins amortisseurs en option
- Maillons extérieurs et intérieurs pour un montage rapide, avec ou sans précontrainte
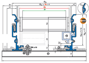
Largeurs internes Bi: 30 à 70 mm
Rayons de courbure R: 48 à 100 mm
Pas : 30,5 mm par maillon = 33 Maillons/m
(1007mm)
A=mobile compris, B=Point fixe
Pas : 30,5 mm
Maillons pro m: 33 Maillons
Course: S
Longueur de chaîne =S/2 + K